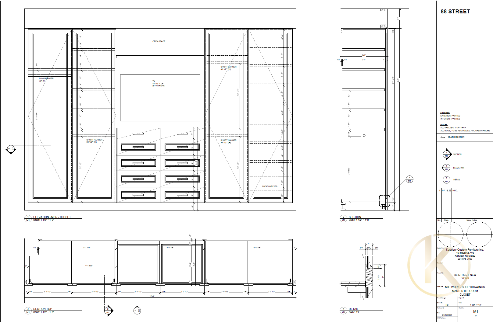
East 88th St.